Benaguasil rep 683.932 euros per al futur Centre de Serveis Socials

centro servicios sociales Benaguasil

La Vicepresidència Primera i Conselleria de Serveis Socials, Igualtat i Habitatge de la Generalitat ha concedit a l’Ajuntament de Benaguasil una subvenció de 683.932,00 euros destinada a la rehabilitació de les Antigues Escoles Sagrada Família, edifici que serà adaptat per a acollir les dependències municipals de l’àrea de Benestar Social.

Aquesta ajuda, que correspon al 100% del finançament de les obres de rehabilitació i construcció, permetrà transformar aquest espai en un nou centre destinat a serveis socials, contribuint així al benestar de la ciutadania i a la millora de l’atenció social en el municipi.

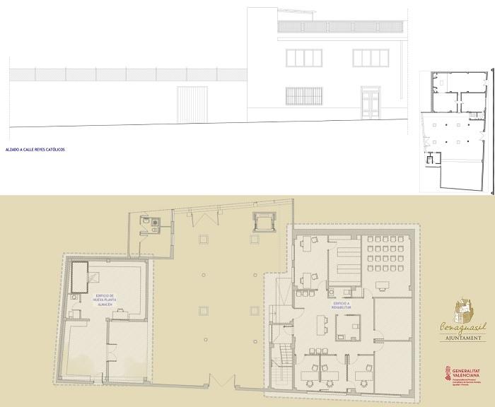
El col·legi de la Sagrada Família, situat al carrer Fra Luis Amigó, és un edifici de dues plantes i una superfície de 800 metres quadrats, situat en sòl urbà dins del centre històric del municipi. L’actuació inclourà la rehabilitació integral de l’immoble i l’adequació de la parcel·la annexa, amb l’objectiu de donar-li un ús públic i social.

Des de l’Ajuntament s’ha destacat que aquesta inversió respon a l’estratègia municipal de recuperar edificis històrics per a dotar-los de nous usos que afavorisquen la cohesió social. L’immoble es destinarà per a les dependències dels Serveis de Socials *municipalesy comptarà amb: despatxos, zones d’espera, sales de reunió, espais d’atenció, sala d’actes, espai de recepció i d’administració, sala d’arxiu, aules, sala multiusos, sala intervencions familiars i lavabos.

Desde l’Ajuntament han destacat que “és una excel·lent notícia per al municipi, ja que permetrà posar en valor un edifici emblemàtic i convertir-lo en un espai al servei de les persones. Aquest projecte reforça el nostre compromís amb les polítiques socials i la millora de la qualitat de vida dels nostres veïns”.

No Comments Yet

Respondre

La seua adreça no es publicarà.